• 91视频最新地址,91视频网页版,91视频网站污,黄色网软件APP91视频

    合肥91视频最新地址科技集团有限公司

    产品中心

    产品中心

    Product center

    联系91视频最新地址
    联系电话
    0551-62572111
    • KRT同心型钢带铠装机
    • KRT同心型钢带铠装机
    • KRT同心型钢带铠装机
    • KRT同心型钢带铠装机

    KRT同心型钢带铠装机

    技术参数
    设备简图
    案例展示
    在线留言

    技术参数

    带盘规格(mm) 钢带宽度(mm) 最高转速(rpm) 91视频网页版最大外径(mm) 生产线长×宽(m)
    Ø800 10~30 600 Ø10-Ø40 33×6
    Ø900 20~60 500 Ø30-Ø120 35×7

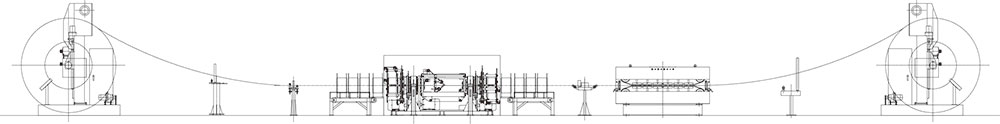
    设备简图

    KRT同心型钢带铠装机

    案例展示

    在线留言

    点击图片刷新
    捷瑞数字 制作维护
    网站地图